Proposed scheme aims to deliver high-quality homes, affordable housing, and significant local infrastructure contributions
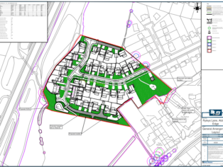
December 2025, Alderley Edge – Story Homes is pleased to confirm the submission of a full planning application for 40 homes, creating a new residential development on land off Ryleys Lane, to the west of Alderley Edge.
The application, submitted to Cheshire East Council, proposes a mix of two to six-bedroom homes, including 12 affordable homes for rent and shared ownership, to help meet local housing needs. The development is designed to provide a variety of homes for first-time buyers, growing families, and downsizers, while creating a cohesive and attractive new neighbourhood.
Josh Dobson-Brear, Land Manager for Story Homes North West, said:
“Our plans for Ryleys Lane represent a sustainable and well-considered extension to Alderley Edge, a highly prestigious location. Story Homes is known for creating high-quality, aspirational homes, and we believe this development is a great fit for the area. We’re proud to have already delivered an award-winning scheme in Cheshire East at Fulshaw Manor, which reflects our commitment to design excellence, placemaking, and long-term community value. Ryleys Lane follows that same approach, and we look forward to working closely with Cheshire East Council and local stakeholders as the planning process progresses.”
As part of the investment in the area, Story Homes will provide publicly accessible green spaces, children’s play areas, and new landscaping throughout the site. Existing trees and views will be retained and enhanced wherever possible, and measures to improve biodiversity are also planned to integrate the development into the surrounding landscape.
The development will be supported by a Section 106 Agreement*, securing financial contributions and infrastructure improvements that will benefit both new and existing residents. Potential contributions could include investment in local education, healthcare, transport, and public open space.
The site benefits from excellent connectivity, being within walking distance of Alderley Edge village centre, local schools, and the train station, supporting more sustainable, low-carbon lifestyles.
Story Homes’ application for Ryleys Lane aligns with Cheshire East Council’s Local Plan, where the site is safeguarded for residential development and brings forward a well-considered proposal that will provide much-needed homes while delivering wider economic and environmental benefits to the community.
A decision on the planning application is anticipated in mid-2026.
For more information, please visit www.storyhomes.co.uk
Section 106*: A legal agreement between a developer and the local planning authority, used to mitigate the impact of new homes on the local community and infrastructure.
